3D Ngoại Thất Biệt Thự Vườn Mái Thái
Công trình của nhà anh huy là một mẫu nhà mái Thái có phong cách tân cổ điển. Hệ thống mái Thái còn giúp toàn bộ ngôi nhà trở nên cao, bề thế hơn. Cùng với đó, mái Thái giúp thoát nước khá tốt, tránh bị ứ đọng nước làm tăng độ bền của ngôi nhà.Những chi tiết đắt giá ở công trình là hệ vòm, cột tròn, các chi tiết trang trí tại mái sảnh. Liền với khu vực sảnh chính là bậc tam cấp. Những đường nét phào chỉ chạy ngang tôn lên vẻ khỏe khoắn, chắc chắn của mẫu nhà tân cổ điển.

Phần sảnh chính của ngôi nhà được thiết kế 2 trụ cột tròn nâng đỡ phần mái sảnh bên trên, tạo sự chắc chắn và bề thế. Phần chân cột được ốp đá trang trí tạo điểm nhấn, việc ốp đá ở chân cột tránh bám bẩn dễ vệ sinh, tô điểm thêm vẻ đẹp tinh tế cho ngôi nhà. Ở công trình này, chúng tôi đã khai thác 2 vị trí sảnh và cả 2 có thiết kế tương đồng với nhau, dù có đứng ở bất cứ vị trí nào cũng sẽ thấy công trình rất thu hút và hoành tráng.

Biệt Thự 2 Tầng Mái Thái Tại Long an

Toàn bộ các hệ cửa đều được sử dụng bằng chất liệu kính cường lực kết hợp với nhôm hệ Xingfa. Chất liệu kính cao cấp với nhiều ưu điểm vượt trội nhằm mang đến ánh sáng đồng thời tăng độ sáng cho công trình. Mỗi ngôi nhà thì hạng mục hàng rào là mục đặc biệt được chú trọng. Cổng được sử dụng chất liệu nhôm đúc nghệ thuật với hoạ tiết hoa văn sắc sảo, mang giá trị thẩm mỹ và nghệ thuật cao.Tường bao bê tông xung quanh thay vì là những mảng tường kín thì đức thảo đã kết hợp những khoảng thoáng, kết nối với thiên nhiên bên ngoài.

Nội Thất Biệt Thự Vườn Mái Thái
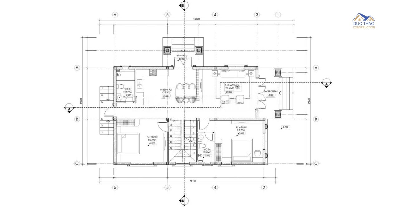
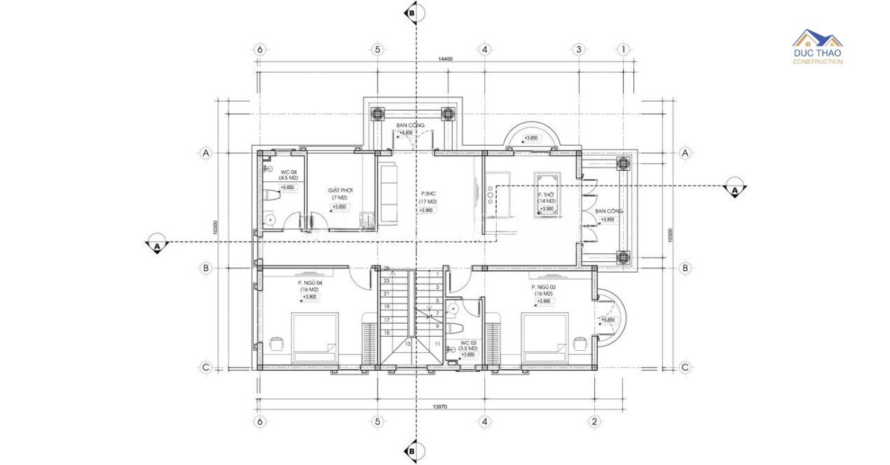
Phòng khách có diện tích 22,5m2, căn phòng này lấy ánh sáng nhờ vào 2 ô cửa sổ và hệ cửa chính. Phòng thờ có diện tích 10m2, phòng thờ không cần diện tích quá lớn nhưng cần phải đảm bảo được vị trí, hướng, không gian. Vách lam có tác dụng ngăn cách giữa phòng khách với phòng bếp ăn có diện tích 21m2, bếp ăn được đặt hệ tủ bếp hình chữ L, bố trí lối đi ra khu vực sảnh phụ, tiện cho việc đi lại thông thoáng hơn.

Phòng ngủ 01 với diện tích 12m2. Phòng ngủ 02 với diện tích 15,5m2, phòng này có nhà vệ sinh khép kín rộng 4,7m2, bố trí nhà vệ sinh khép kín sẽ tăng thêm tính riêng tư và tiện nghi cho căn phòng ngủ. Tiếp theo là phòng ngủ 03 rộng 13m2. Công trình này có 3 phòng ngủ vừa đủ cho nhu cầu sử dụng của cả công trình. Nhà vệ sinh chung ở cuối tầng rộng 4,7m2.

Và thông tin bài viết trên hy vọng là mẫu nhà quý khách hàng yêu thích nếu cần hổ trợ tư vấn cụ thể hơn về mẫu nhà trên bạn hãy liên hệ cho chúng tôi qua hotlite .09.09.77.2222 . rất vui được tư vấn cho ngôi nhà tương lai của bạn
