I. Giới Thiệu Tổng Quan Về Mẫu Nhà Phố Tân Cổ Điển 2 Mặt Tiền
Mẫu nhà phố Tân cổ điển 2 mặt tiền này là một kiệt tác kiến trúc, được thiết kế tinh tế trên lô đất vàng có mặt tiền 5m và chiều sâu 18m tại trung tâm Quận Bình Thạnh. Điểm đặc biệt và giá trị vượt trội của công trình nằm ở việc sở hữu hai mặt tiền thông thoáng, giúp tối ưu hóa khả năng tiếp cận ánh sáng tự nhiên và luồng gió mát từ nhiều hướng. Nhờ vậy, mỗi không gian trong ngôi nhà đều tràn ngập sinh khí, mang lại cảm giác dễ chịu và thư thái cho gia chủ.
Phong cách Tân cổ điển được thể hiện rõ nét qua từng đường nét kiến trúc. Đó là sự giao thoa hoàn hảo giữa vẻ đẹp cổ kính, lãng mạn với sự tiện nghi, hiện đại. Các chi tiết phào chỉ được chạm khắc tỉ mỉ, những đường gờ mềm mại và các cột trụ vững chãi đều góp phần tạo nên một diện mạo sang trọng, đẳng cấp. Đặc biệt, ngôi nhà khoác lên mình tone màu trắng chủ đạo, không chỉ mang lại cảm giác tinh khiết, thanh lịch mà còn giúp tôn lên vẻ đẹp lộng lẫy của các chi tiết kiến trúc, đồng thời tạo hiệu ứng mở rộng không gian.
Để tăng cường sự kết nối với thiên nhiên và mở rộng tầm nhìn, mỗi tầng của ngôi nhà đều được bố trí ban công rộng rãi, hướng ra cả hai mặt tiền. Đây không chỉ là nơi lý tưởng để thư giãn, ngắm cảnh mà còn là điểm nhấn kiến trúc, giúp ngôi nhà thêm phần bay bổng và thu hút. Những vòm cửa sổ lớn không chỉ là điểm nhấn kiến trúc độc đáo, mang đậm dấu ấn Tân cổ điển, mà còn có tác dụng tối đa hóa ánh sáng và thông gió, đảm bảo không gian bên trong luôn ngập tràn sự tươi mới. Sự kết hợp hài hòa giữa vật liệu cao cấp và kỹ thuật xây dựng hiện đại đã tạo nên một công trình không chỉ đẹp về mặt thẩm mỹ mà còn vững chắc, bền bỉ cùng thời gian.
.jpg)
.jpg)
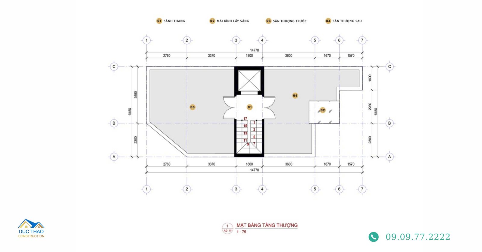
II. Chi Tiết Thiết Kế Các Tầng
Mẫu nhà phố Tân cổ điển này được kiến trúc sư của Đức Thảo bố trí công năng vô cùng khoa học và linh hoạt trên 4 tầng chính, chưa bao gồm khu vực tum và sân thượng trên cùng. Sự sắp xếp này không chỉ tối ưu hóa diện tích sử dụng mà còn đáp ứng đa dạng nhu cầu, từ không gian sinh hoạt ấm cúng cho gia đình đến mục đích kinh doanh cho thuê, tạo ra một nguồn thu nhập ổn định.
Bước vào tầng 1, bạn sẽ ngay lập tức cảm nhận được sự rộng rãi và thoáng đãng của phòng khách. Đây là không gian được thiết kế mở, ngập tràn ánh sáng tự nhiên, lý tưởng để tiếp đón bạn bè, người thân hoặc tổ chức những buổi sum họp gia đình ấm cúng. Liền kề đó là khu vực gara xe tiện lợi, đủ chỗ cho cả ô tô và xe máy, đảm bảo sự an toàn và thuận tiện tối đa cho việc di chuyển hàng ngày. Một nhà vệ sinh chung (WC) được bố trí hợp lý tại tầng này, phục vụ nhu cầu sinh hoạt chung của gia đình và khách đến chơi.
Lên đến tầng 2, đây là không gian riêng tư dành cho gia đình với 4 phòng ngủ riêng biệt. Mỗi phòng ngủ đều được thiết kế khép kín, đi kèm với một nhà vệ sinh riêng, đảm bảo sự riêng tư tuyệt đối và tiện nghi tối đa cho mỗi thành viên. Thiết kế này không chỉ mang lại sự thoải mái mà còn giúp quản lý sinh hoạt cá nhân một cách hiệu quả.
Điểm nhấn đặc biệt của mẫu nhà này nằm ở tầng 3 và tầng 4, nơi được quy hoạch thành các phòng cho thuê. Mỗi tầng bao gồm 4 phòng cho thuê, và tương tự như tầng 2, mỗi phòng đều có nhà vệ sinh riêng biệt. Đây là một giải pháp kinh doanh thông minh, giúp gia chủ tận dụng tối đa lợi thế của nhà phố 2 mặt tiền để tạo ra dòng tiền ổn định hàng tháng. Các phòng cho thuê được thiết kế hiện đại, tiện nghi, chắc chắn sẽ thu hút được lượng khách thuê ổn định.
Cuối cùng, tầng 5 là khu vực tum và sân thượng. Tum được thiết kế đa năng, có thể tận dụng làm kho chứa đồ, phòng thờ yên tĩnh, hay khu vực giặt phơi tiện lợi. Phần sân thượng rộng rãi là một không gian lý tưởng để gia chủ thư giãn, hít thở không khí trong lành. Bạn có thể biến nơi đây thành một khu vườn nhỏ với cây cảnh xanh mát, hay một không gian lý tưởng để tổ chức những bữa tiệc BBQ ngoài trời, hoặc đơn giản chỉ là nơi để hóng gió, ngắm cảnh thành phố sau một ngày dài làm việc. Sự kết hợp linh hoạt này mang đến một không gian sống đa chiều và đầy đủ tiện ích.
.jpg)
.jpg)
III. Tại Sao Nên Chọn Phong Cách Tân Cổ Điển Cho Nhà Phố 2 Mặt Tiền?
Việc lựa chọn phong cách thiết kế là một trong những quyết định quan trọng nhất khi xây dựng tổ ấm. Trong vô vàn xu hướng kiến trúc hiện nay, phong cách Tân cổ điển vẫn luôn khẳng định vị thế là sự lựa chọn hàng đầu, đặc biệt đối với những công trình nhà phố 2 mặt tiền. Lý do không chỉ nằm ở vẻ đẹp thẩm mỹ mà còn ở những giá trị bền vững mà nó mang lại:
- Sang trọng và Đẳng cấp Vượt Thời Gian: Nhà phố phong cách Tân cổ điển mang trong mình một vẻ đẹp quý phái và lộng lẫy hiếm có, không bị ảnh hưởng bởi các xu hướng nhất thời. Điều này được thể hiện rõ nét qua từng chi tiết phào chỉ được chạm khắc tinh xảo, những đường gờ mềm mại và các hoa văn trang trí đầy nghệ thuật. Kết hợp với gam màu trắng chủ đạo, cùng với các sắc thái trung tính tinh tế, tổng thể ngôi nhà toát lên một vẻ đẹp vừa cổ kính, vừa hiện đại, khẳng định đẳng cấp và gu thẩm mỹ tinh tế của gia chủ. Ngôi nhà sẽ luôn giữ được giá trị thẩm mỹ cao theo thời gian, không bao giờ lỗi mốt.
- Tối Ưu Ánh Sáng và Thông Gió Tự Nhiên: Đây là một trong những ưu điểm vượt trội khi áp dụng phong cách Tân cổ điển cho nhà phố có hai mặt tiền. Với lợi thế này, ngôi nhà có khả năng đón nhận tối đa ánh sáng tự nhiên và luồng gió mát từ nhiều hướng khác nhau. Các vòm cửa sổ lớn không chỉ là điểm nhấn kiến trúc mà còn giúp ánh sáng đi sâu vào mọi ngóc ngách, tạo nên không gian sống luôn tràn đầy sinh khí, trong lành và thoáng đãng. Điều này không chỉ tốt cho sức khỏe mà còn giúp tiết kiệm đáng kể chi phí chiếu sáng và làm mát.
- Bền Vững và Trường Tồn Cùng Năm Tháng: Một trong những giá trị cốt lõi của kiến trúc Tân cổ điển là sự bền vững. Khác với những phong cách hiện đại có thể nhanh chóng bị thay thế bởi các xu hướng mới, vẻ đẹp của Tân cổ điển mang tính kinh điển, trường tồn. Các đường nét cân đối, tỉ lệ vàng và sự kết hợp hài hòa giữa các yếu tố kiến trúc cổ điển với vật liệu hiện đại đảm bảo rằng công trình không chỉ đẹp ở hiện tại mà còn giữ được giá trị thẩm mỹ và giá trị sử dụng lâu dài cho các thế hệ mai sau. Đây là một khoản đầu tư xứng đáng cho tương lai.
- Linh Hoạt Trong Công Năng Sử Dụng: Phong cách Tân cổ điển không chỉ mang lại vẻ đẹp mà còn cực kỳ linh hoạt trong việc bố trí và chuyển đổi công năng. Với kết cấu vững chắc và không gian được quy hoạch khoa học, ngôi nhà có thể dễ dàng kết hợp nhiều loại hình chức năng khác nhau. Bạn có thể sử dụng toàn bộ làm không gian sống sang trọng cho gia đình, hoặc kết hợp làm văn phòng đại diện, hay như mẫu thiết kế này, là sự kết hợp tinh tế giữa không gian ở và các phòng cho thuê, mang lại hiệu quả kinh tế cao. Sự linh hoạt này giúp tối đa hóa tiềm năng sử dụng của bất động sản.
.jpg)
.jpg)
.jpg)
.jpg)
(1).jpg)
.jpg)
.jpg)
IV. Đơn Vị Thi Công Uy Tín - Công Ty Thiết Kế và Xây Dựng Đức Thảo
Để biến một bản vẽ thiết kế ấn tượng thành một ngôi nhà phố 2 mặt tiền hoàn hảo, việc lựa chọn một đơn vị thiết kế và thi công uy tín là yếu tố then chốt, quyết định đến chất lượng, tính thẩm mỹ và độ bền vững của công trình. Tại Công ty Thiết kế và Xây dựng Đức Thảo, chúng tôi tự hào là đối tác đáng tin cậy, mang đến sự an tâm tuyệt đối cho khách hàng với những thế mạnh vượt trội:
- 15 Năm Kinh Nghiệm Vững Chãi: Với hành trình 15 năm xây dựng và phát triển, Đức Thảo đã ghi dấu ấn qua hàng trăm dự án lớn nhỏ trải dài khắp cả nước, đặc biệt là tại TP. Hồ Chí Minh. Kinh nghiệm dày dặn này không chỉ được đúc kết từ số lượng công trình mà còn từ khả năng xử lý linh hoạt mọi thách thức, tối ưu hóa giải pháp thiết kế và thi công cho từng dự án, dù là phức tạp nhất. Chúng tôi hiểu rõ đặc thù thổ nhưỡng, khí hậu và quy định xây dựng tại địa phương, đảm bảo mọi công trình đều đạt chuẩn mực cao nhất.
- Đội Ngũ Kiến Trúc Sư Giàu Kinh Nghiệm và Sáng Tạo: Linh hồn của mỗi công trình là từ những ý tưởng đột phá và tầm nhìn chiến lược của kiến trúc sư. Đức Thảo sở hữu đội ngũ kiến trúc sư không chỉ giàu kinh nghiệm mà còn không ngừng sáng tạo, luôn cập nhật những xu hướng thiết kế mới nhất trên thế giới. Họ là những người am hiểu sâu sắc về kiến trúc Tân cổ điển, biết cách kết hợp hài hòa giữa vẻ đẹp cổ điển và công năng hiện đại, tạo ra những không gian sống không chỉ đẹp mắt mà còn tối ưu về công năng, phù hợp với phong cách sống của gia chủ.
- Đội Thi Công Tay Nghề Cao và Chuyên Nghiệp: Từ bản vẽ trên giấy đến công trình thực tế là cả một quá trình đòi hỏi sự tỉ mỉ, chính xác và chuyên nghiệp. Đội ngũ thi công của Đức Thảo được tuyển chọn kỹ lưỡng, với tay nghề cao, kinh nghiệm dày dặn trong việc triển khai các công trình phức tạp. Chúng tôi luôn tuân thủ nghiêm ngặt các quy trình kỹ thuật, sử dụng vật liệu chất lượng cao, đảm bảo từng viên gạch, từng chi tiết nhỏ đều được hoàn thiện một cách tỉ mỉ, chính xác, đúng bản vẽ thiết kế và đạt chất lượng cao nhất.
- Cam Kết Về Chất Lượng và Bảo Hành Toàn Diện: Tại Đức Thảo, chất lượng là yếu tố được đặt lên hàng đầu. Chúng tôi cam kết mang đến những giải pháp thiết kế tối ưu, không chỉ đẹp về mặt thẩm mỹ mà còn bền vững về kết cấu. Đặc biệt, chúng tôi cung cấp chính sách bảo hành kết cấu dài hạn, đảm bảo sự an tâm tuyệt đối cho khách hàng về nền móng, khung sườn và toàn bộ phần chịu lực của ngôi nhà. Song song đó, chúng tôi cũng thực hiện bảo hành phần hoàn thiện, bao gồm các hạng mục như sơn, ốp lát, hệ thống điện nước, cửa… để đảm bảo mọi chi tiết đều hoàn hảo và hoạt động trơn tru theo thời gian. Sự minh bạch trong hợp đồng và cam kết bảo hành rõ ràng là minh chứng cho sự tự tin vào chất lượng dịch vụ mà chúng tôi cung cấp.
Chúng tôi hiểu rằng xây nhà là một quyết định trọng đại. Vì vậy, Đức Thảo luôn nỗ lực để mỗi công trình không chỉ đạt chất lượng vượt trội, đúng tiến độ mà còn với chi phí hợp lý, tối ưu hóa nguồn lực cho khách hàng.
V. Lời Kết
Mẫu nhà phố 2 mặt tiền phong cách Tân cổ điển mà Công ty Đức Thảo đã giới thiệu không chỉ đơn thuần là một công trình kiến trúc; nó là một biểu tượng của sự tinh tế, một định nghĩa mới về đẳng cấp sống, và là minh chứng cho sự tối ưu trong tiện nghi hiện đại. Với sự kết hợp hoàn hảo giữa vẻ đẹp vượt thời gian của kiến trúc Tân cổ điển cùng công năng linh hoạt, phù hợp với nhịp sống đô thị sôi động của Quận Bình Thạnh, đây chắc chắn là sự lựa chọn hoàn hảo, mang đến không gian sống mơ ước cho bạn và gia đình. Ngôi nhà không chỉ đáp ứng nhu cầu an cư mà còn mở ra cơ hội đầu tư sinh lời bền vững.
Nếu bạn đang ấp ủ ước mơ về một không gian sống đẳng cấp, sang trọng, và đầy đủ tiện ích như vậy, đừng ngần ngại biến ước mơ đó thành hiện thực. Hãy liên hệ ngay với Công ty Thiết kế và Xây dựng Đức Thảo! Với kinh nghiệm 15 năm trong ngành, đội ngũ kiến trúc sư tài năng và đội ngũ thi công chuyên nghiệp, chúng tôi cam kết sẽ kiến tạo nên ngôi nhà lý tưởng của bạn, một công trình không chỉ đẹp về thẩm mỹ mà còn vững chắc về chất lượng, bền bỉ cùng thời gian. Chúng tôi luôn sẵn sàng lắng nghe, tư vấn và đồng hành cùng bạn từ những ý tưởng đầu tiên cho đến khi hoàn thiện công trình.
Hotline/Zalo: 0909 77 2222
Website: https://xaydungducthao.com/
Địa chỉ văn phòng: 435/284/17 Phạm Văn Đồng, P.11, Quận Bình Thạnh, TP.HCM
Chúng tôi luôn sẵn sàng đồng hành cùng bạn từ bản vẽ đầu tiên cho đến ngày hoàn công.