3D Mẫu Biệt Thự Mái Nhật 2 Tầng Tân Cổ Điển
Căn nhà vườn 2 tầng tân cổ điển ấn tượng với màu sơn trắng tinh khối cùng hệ mái Nhật màu nâu cà phê mang lại không gian mặt tiền có sự nhịp nhàng của màu sắc. Điểm đặc biệt là ngôi nhà chú trọng các hoa văn từ hệ thống cửa, cột nhà và các đường kẻ chỉ tường giúp công trình trở nên nổi bật, ấn tượng bởi vẻ đẹp mềm mại.

Quan sát nhà vườn 2 tầng tân cổ điển của anh Mẫn, bạn có thể thấy ngôi nhà được đội ngũ kiến trúc sư của Đức Thảo thiết kế toàn bộ hệ thống cửa bằng chất liệu kính khung nhôm để có sự đồng bộ. Ngoài ra, hệ thống cửa này giúp ngôi nhà tân cổ điển hạn chế được tối đa tiếng ồn vào trong nhà. Đặc biệt, cửa sổ được bố trí khá nhiều giúp công trình luôn được thông thoáng và rất thích hợp với đặc thù khí hậu ở Việt Nam.

Màu mái Nhật sử dụng gam màu nâu cà phê rất thanh lịch và dễ chịu, vẫn gây sức hút khi được lựa chọn thiết kế. Trên mái nhà xuất hiện chi tiết chuồng chim nổi bật để phần mái không bị nhàm chán. Ngoài ra, công trình còn sử dụng hệ lan can sắt mỹ nghệ sơn tĩnh điện màu đen được uốn lượn hoa văn cầu kỳ, hợp với phong cách tân cổ điển mà ngôi nhà đang theo. Nằm trên khuôn đất rộng với kích lớn 17,6 x 50m, công trình nhà anh Mẫn được xây dựng gọn ở phía trong, các không gian còn lại sẽ được bố trí sân vườn tiểu cảnh sống động, giúp ngôi nhà có thêm không gian xanh nghỉ dưỡng.

mặt bằng nhà mái nhật 2 tầng
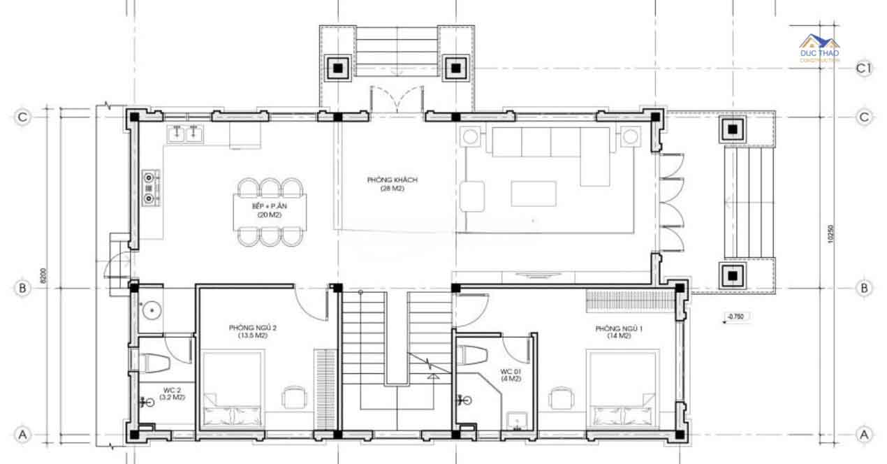
Mặt bằng bố trí công năng tầng 1
Quan sát mặt bằng tầng 1, bạn có thể thấy phòng khách của căn nhà được các kiến trúc sư của Đức Thảo thiết kế vô cùng rộng rãi với diện tích 28m2, sở hữu ô cửa sổ lớn và 2 lối đi ra phía bên ngoài, giúp tăng ánh sáng tự nhiên vào trong phòng và kết nối không gian bên trong với không gian bên ngoài. Phòng khách và phòng bếp được ngăn cách với nhau bởi vách lam. Thiết kế phòng bếp ấm áp có 1 cửa phụ đi ra sân sau tạo nên sự thuận tiện trong di chuyển cho các thành viên trong gia đình.
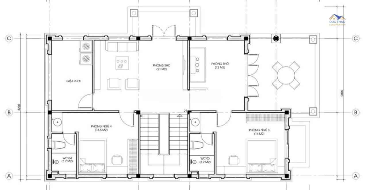
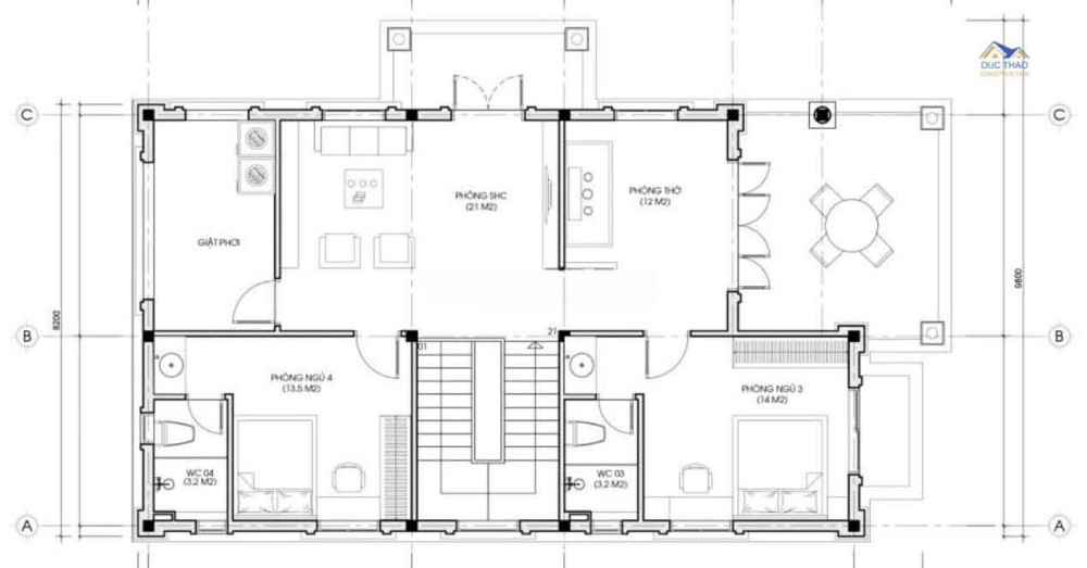
Mặt bằng bố trí công năng tầng 2
Công trình nhà 2 tầng này sở hữu tới 4 phòng ngủ với diện tích gần tương đương nhau khoảng 14m2 cho mỗi phòng và mỗi tầng bố trí 2 phòng ngủ. Trên tầng 2 còn có thêm phòng thờ, phòng sinh hoạt chung và sân phơi, toàn bộ công năng được bố trí đầy đủ đáp ứng được mọi sinh hoạt trong gia đình anh nhật




