I. Mẫu nhà phố 3 tầng 4 phòng ngủ - Sự lựa chọn lý tưởng cho gia đình hiện đại, tiện nghi và sang trọng
Trong bối cảnh đô thị hóa ngày càng phát triển, những mẫu nhà phố được thiết kế tối ưu công năng, hiện đại và sang trọng đang trở thành lựa chọn hàng đầu của nhiều gia đình Việt. Nổi bật trong số đó là mẫu nhà phố 3 tầng 4 phòng ngủ do Công ty Thiết kế và Xây dựng Đức Thảo kiến tạo. Đây không chỉ là một công trình kiến trúc thông thường mà còn là minh chứng rõ nét cho sự kết hợp hài hòa giữa thẩm mỹ hiện đại và tiện ích sử dụng tối đa, đáp ứng trọn vẹn mọi nhu cầu về không gian sống của một gia đình đông thành viên.
Ngay từ ánh nhìn đầu tiên, mẫu nhà này đã gây ấn tượng mạnh mẽ với thiết kế mặt tiền tinh tế và đầy cuốn hút. Không gian ngoại thất được chăm chút tỉ mỉ từng chi tiết, từ những đường nét kiến trúc mạnh mẽ, dứt khoát mang đậm phong cách hiện đại cho đến sự phối hợp màu sắc đầy tính nghệ thuật. Tone màu trắng chủ đạo bao phủ toàn bộ mặt tiền, không chỉ mang lại cảm giác thanh lịch, sang trọng mà còn tạo hiệu ứng thị giác giúp căn nhà trông rộng rãi và thoáng đãng hơn. Màu trắng tinh khôi còn là biểu tượng của sự thuần khiết, tươi mới, làm nổi bật vẻ đẹp thanh thoát của tổng thể công trình.
Điểm nhấn đặc biệt, làm nổi bật vẻ đẹp hiện đại nhưng vẫn giữ được nét ấm cúng cho ngôi nhà chính là việc sử dụng màu nâu gỗ tự nhiên ở cửa chính. Sự kết hợp giữa màu trắng tinh khôi và sắc nâu ấm áp không chỉ tạo nên một bảng màu cân bằng, hài hòa mà còn mang đến cảm giác gần gũi, thân thiện ngay từ khi bước chân vào. Cánh cửa gỗ lớn không chỉ là lối vào mà còn là một tác phẩm nghệ thuật, tôn lên vẻ đẹp sang trọng và đẳng cấp của ngôi nhà.
Bên cạnh yếu tố thẩm mỹ, các ban công tại tầng 2 và tầng 3 là điểm nhấn không thể bỏ qua. Chúng không chỉ đóng vai trò làm tăng tính thẩm mỹ, tạo điểm nhấn cho mặt tiền mà còn mang đến những không gian mở vô cùng giá trị. Đây là nơi lý tưởng để gia đình có thể thư giãn, hít thở không khí trong lành, đón ánh nắng ban mai hay ngắm nhìn khung cảnh xung quanh. Ban công còn giúp điều hòa không khí, đưa ánh sáng tự nhiên vào sâu bên trong ngôi nhà, tạo nên một môi trường sống thoáng đãng và tràn đầy năng lượng. Tổng thể, mẫu nhà phố 3 tầng 4 phòng ngủ của Đức Thảo thực sự là một lựa chọn hoàn hảo, là biểu tượng của cuộc sống hiện đại, tiện nghi và đầy phong cách.

II. Phong cách kiến trúc hiện đại - Đơn giản, tinh tế và tối ưu
Mẫu nhà phố của Đức Thảo là một điển hình xuất sắc cho phong cách kiến trúc hiện đại, nơi mà sự tối giản không đồng nghĩa với sự đơn điệu, mà ngược lại, mở ra một không gian sống đầy tinh tế và sang trọng. Triết lý thiết kế tập trung vào việc tối giản hóa các đường nét, loại bỏ những chi tiết rườm rà không cần thiết, để mỗi yếu tố kiến trúc đều mang một ý nghĩa và chức năng riêng. Điều này tạo nên một vẻ đẹp thanh thoát, gọn gàng nhưng vẫn vô cùng ấn tượng và cuốn hút, hoàn toàn phù hợp với nhịp sống năng động và xu hướng thẩm mỹ của đô thị hiện đại.
Để đạt được vẻ đẹp này, các kiến trúc sư đã khéo léo kết hợp các khối hình học đơn giản như hình chữ nhật, hình vuông, tạo nên tổng thể vững chãi và mạch lạc. Sự tinh tế còn được thể hiện qua việc lựa chọn và ứng dụng các vật liệu hiện đại một cách thông minh. Kính cường lực được sử dụng rộng rãi cho hệ thống cửa và lan can ban công, không chỉ mang lại vẻ đẹp trong suốt, sang trọng mà còn tối đa hóa khả năng đón sáng. Thép được dùng cho các chi tiết kết cấu, vừa đảm bảo sự vững chắc, vừa tạo điểm nhấn mạnh mẽ, cá tính. Bên cạnh đó, sự xuất hiện của gỗ không chỉ mang đến vẻ ấm áp, gần gũi tự nhiên mà còn tạo sự cân bằng hoàn hảo với các vật liệu công nghiệp khác, tránh cảm giác lạnh lẽo thường thấy ở các công trình hiện đại.
Một trong những ưu điểm nổi bật nhất của phong cách hiện đại trong mẫu nhà này là khả năng tận dụng tối đa ánh sáng tự nhiên. Hệ thống cửa kính lớn được bố trí xuyên suốt các tầng, kết hợp với các ban công rộng rãi, giúp ánh nắng mặt trời dễ dàng len lỏi vào mọi ngóc ngách của ngôi nhà. Điều này không chỉ giúp không gian luôn tràn ngập sức sống, tươi mới mà còn góp phần tiết kiệm đáng kể năng lượng chiếu sáng ban ngày. Ánh sáng tự nhiên còn có tác dụng tích cực đến tâm trạng và sức khỏe của các thành viên, tạo ra một môi trường sống trong lành và thư thái. Sự thông thoáng cũng là yếu tố được chú trọng, với hệ thống cửa và ban công được tính toán kỹ lưỡng để tạo luồng đối lưu không khí, giúp ngôi nhà luôn mát mẻ và dễ chịu, đặc biệt trong điều kiện khí hậu nhiệt đới.
Tóm lại, phong cách kiến trúc hiện đại của mẫu nhà phố này không chỉ dừng lại ở vẻ đẹp hình thức. Nó còn là sự kết hợp hài hòa giữa công năng, thẩm mỹ và sự bền vững, tạo nên một không gian sống lý tưởng, phản ánh lối sống tinh tế và hiện đại của gia chủ.

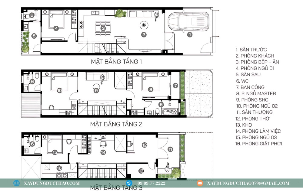
III. Bố trí công năng các tầng khoa học và tiện nghi, tối ưu hóa không gian sống
Hiểu rõ tầm quan trọng của việc tối ưu hóa không gian sống trong nhà phố, các kiến trúc sư giàu kinh nghiệm của Công ty Thiết kế và Xây dựng Đức Thảo đã tiến hành nghiên cứu và tính toán kỹ lưỡng để bố trí công năng từng tầng một cách vô cùng khoa học. Mục tiêu hàng đầu là đảm bảo sự tiện nghi tối đa và không gian riêng tư cần thiết cho mọi thành viên trong gia đình, đồng thời tạo ra một luồng di chuyển mạch lạc và hợp lý.
Tầng 1: Khi bước vào, bạn sẽ cảm nhận ngay sự thông thoáng và rộng rãi nhờ thiết kế không gian mở liên thông giữa phòng khách và khu vực bếp ăn. Sự kết nối linh hoạt này không chỉ tạo cảm giác liền mạch, tăng tính kết nối giữa các thành viên mà còn giúp tối ưu hóa diện tích sử dụng, làm cho căn nhà trở nên rộng lớn hơn so với thực tế. Đặc biệt, việc bố trí một phòng ngủ ngay tại tầng trệt là một điểm cộng lớn, mang lại sự tiện lợi vượt trội. Đây là lựa chọn lý tưởng cho các thành viên lớn tuổi trong gia đình, giúp họ dễ dàng di chuyển mà không cần lên xuống cầu thang nhiều. Ngoài ra, căn phòng này cũng có thể linh hoạt chuyển đổi thành phòng làm việc yên tĩnh hoặc phòng ngủ dành cho khách ghé thăm. Nhà vệ sinh chung được đặt ở vị trí thuận tiện, gần khu vực sinh hoạt chung, đảm bảo sự dễ dàng và tiện lợi cho mọi người khi sử dụng.




Tầng 2: Là khu vực được dành riêng cho không gian nghỉ ngơi và riêng tư tuyệt đối của gia đình. Với ba phòng ngủ được bố trí hợp lý, mỗi phòng đều được thiết kế để tối ưu hóa ánh sáng tự nhiên và thông gió, mang lại cảm giác dễ chịu và thư thái. Cửa sổ lớn và cách bố trí thông minh giúp đón trọn vẹn ánh sáng mặt trời, tạo không gian tràn đầy năng lượng và sức sống. Để đảm bảo sự tiện nghi và riêng tư tối đa, hai nhà vệ sinh riêng biệt được bố trí phục vụ nhu cầu của các phòng ngủ. Điều này giúp giảm thiểu sự chờ đợi và tăng cường sự thoải mái cho từng thành viên. Điểm nhấn của tầng này chính là ban công rộng rãi, một không gian lý tưởng để thư giãn, đọc sách, ngắm cảnh hay đơn giản là tận hưởng không khí trong lành sau một ngày dài. Ban công không chỉ là điểm nhấn kiến trúc mà còn là lá phổi xanh của ngôi nhà.
Tầng 3: Tầng cao nhất của ngôi nhà được thiết kế đa năng và linh hoạt. Một phòng thờ trang trọng được đặt ở vị trí yên tĩnh, thể hiện lòng thành kính và giữ gìn nét đẹp văn hóa truyền thống của gia đình Việt. Không gian này được thiết kế để mang lại sự thanh tịnh và thiêng liêng. Nổi bật nhất là sân thượng rộng rãi, một không gian đa năng có thể tận dụng theo nhiều cách khác nhau. Đây có thể là khu vực giặt phơi quần áo thoáng đãng, một vườn cây mini xanh mát để gia chủ thỏa mãn đam mê làm vườn, hay biến thành không gian BBQ ngoài trời lý tưởng cho những buổi tụ họp bạn bè và gia đình. Sân thượng mang đến những giây phút thư giãn tuyệt vời, tạo thêm giá trị sống cho ngôi nhà.
Nhờ sự bố trí công năng khoa học và tiện nghi này, mẫu nhà phố 3 tầng của Đức Thảo không chỉ đáp ứng đầy đủ nhu cầu sinh hoạt mà còn tạo ra một không gian sống hài hòa, thoải mái và đẳng cấp cho mọi gia đình.


IV. Đức Thảo - Đồng hành cùng bạn xây dựng tổ ấm mơ ước bằng sự tận tâm và chuyên nghiệp
Khi bắt tay vào xây dựng tổ ấm, việc lựa chọn một đối tác uy tín và chuyên nghiệp là yếu tố then chốt quyết định chất lượng và giá trị của công trình. Với nhiều năm kinh nghiệm dày dặn trong lĩnh vực thiết kế và xây dựng, Công ty Thiết kế và Xây dựng Đức Thảo tự hào là cái tên được khách hàng tin tưởng và lựa chọn. Chúng tôi không chỉ cung cấp những giải pháp kiến trúc đơn thuần mà còn kiến tạo nên những không gian sống lý tưởng, đáp ứng mọi yêu cầu khắt khe nhất của từng gia đình.
Tại Đức Thảo, chúng tôi hiểu rằng mỗi ngôi nhà là một câu chuyện, một giấc mơ được ấp ủ. Vì vậy, đội ngũ của chúng tôi luôn lắng nghe và thấu hiểu mong muốn của khách hàng để đưa ra những giải pháp kiến trúc tối ưu nhất, không chỉ về mặt thẩm mỹ mà còn về công năng sử dụng, tính kinh tế và sự bền vững. Chúng tôi không ngừng cập nhật những xu hướng thiết kế mới nhất, ứng dụng công nghệ hiện đại vào quy trình làm việc để mang đến những công trình đột phá và có giá trị vượt thời gian.
Cam kết về chất lượng là nền tảng vững chắc làm nên thương hiệu Đức Thảo. Chúng tôi chỉ sử dụng vật liệu chất lượng cao, có nguồn gốc rõ ràng và đạt tiêu chuẩn quốc tế, đảm bảo sự an toàn, độ bền vượt trội và tính thẩm mỹ lâu dài cho ngôi nhà của bạn. Từ sắt thép, xi măng, gạch ốp lát cho đến các hệ thống điện nước, mọi vật liệu đều được kiểm tra nghiêm ngặt trước khi đưa vào thi công.
Quy trình thi công chuyên nghiệp của Đức Thảo được thực hiện bài bản, khoa học, tuân thủ nghiêm ngặt các tiêu chuẩn kỹ thuật và an toàn lao động. Mọi công đoạn từ khảo sát, thiết kế, lập dự toán, thi công móng, phần thô đến hoàn thiện đều được giám sát chặt chẽ bởi đội ngũ kỹ sư và quản lý dự án giàu kinh nghiệm. Chúng tôi đảm bảo tiến độ thi công đúng hạn, tối ưu chi phí và hạn chế tối đa các phát sinh không đáng có.
Đặc biệt, đội ngũ kiến trúc sư và kỹ sư của Đức Thảo là những chuyên gia có trình độ chuyên môn cao, óc sáng tạo không ngừng và kinh nghiệm thực tế phong phú. Họ không chỉ là những người vẽ nên bản thiết kế mà còn là những người bạn đồng hành, sẵn sàng tư vấn, giải đáp mọi thắc mắc và biến ý tưởng của bạn thành hiện thực. Sự tận tâm, nhiệt huyết và trách nhiệm trong từng dự án là yếu tố giúp Đức Thảo nhận được sự tin yêu từ khách hàng.
V. Lời kết
Mẫu nhà phố 3 tầng 4 phòng ngủ với phong cách hiện đại, tối ưu công năng và thiết kế tinh tế do Đức Thảo thực hiện chắc chắn sẽ là tổ ấm lý tưởng cho gia đình bạn. Hãy để chúng tôi biến ước mơ về một ngôi nhà hoàn hảo của bạn thành hiện thực! Với Đức Thảo, chúng tôi cam kết mang đến cho bạn một ngôi nhà không chỉ đẹp về thẩm mỹ, với phong cách kiến trúc độc đáo và ấn tượng, mà còn vững chắc về kết cấu, kiên cố trước mọi điều kiện thời tiết, và bền vững theo thời gian, là nơi an cư lạc nghiệp cho nhiều thế hệ. Hãy để Đức Thảo trở thành đối tác tin cậy, cùng bạn kiến tạo nên tổ ấm mơ ước!
Liên hệ ngay với Công ty Thiết kế và Xây dựng Đức Thảo để được tư vấn và nhận báo giá chi tiết cho ngôi nhà mơ ước của bạn!
Hotline/Zalo: 0909 77 2222
Website: https://xaydungducthao.com/
Địa chỉ văn phòng: 435/284/17 Phạm Văn Đồng, P.11, Quận Bình Thạnh, TP.HCM
Chúng tôi luôn sẵn sàng đồng hành cùng bạn từ bản vẽ đầu tiên cho đến ngày hoàn công.