Mô hình 3d nhà cấp 4 mái thái 3 phòng ngủ kích thước 7mx10m

Mẫu nhà mái thái cấp 4 diện tích 7mx10m

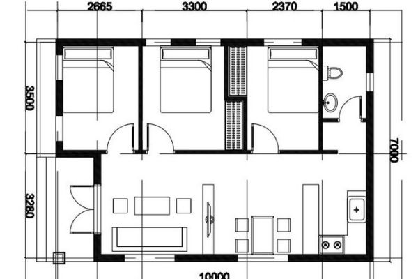
Bản vẽ mô hình nhà cấp 4 3D
Mô hình nhà cấp 4 mái thái này được thiết kế đơn giản và được ứng dụng rộng rãi trong xây dựng. Nhìn tổng thể bên ngoài, phần móng được đôn lên cao hơn với phần sân khoảng 0,4m. Có từng bậc thang bước lên hiên. Phần mái thái được thiết kế chữ A vuông góc phù hợp với diện tích xây dựng nhỏ 7mx10m. Gần cửa chính là phòng khách, đi thẳng vào là bàn ăn và bếp, được ngăn cách bởi vách ngăn gỗ. Đối diện là 3 phòng ngủ, 1WC dùng chung cho toàn bộ.
Đây là gợi ý hoàn hảo về thiết kế và cách bố trí phòng ốc dành cho nhà cấp 4 mái thái kích thước nhỏ. Thiết kế này vừa hợp xu hướng vừa giúp bạn có không gian sinh hoạt hiện đại và thoải mái hơn.
Mô hình nhà cấp 4 có gác lửng
Mô hình nhà cấp 4 3D có gác phù hợp với những chủ đầu tư có mức kinh phí xây dựng thấp, gia đình có đông thành viên hoặc kinh doanh buôn bán cần thêm không gian để sinh hoạt, thờ cúng.

Mô hình nhà cấp 4 3D có gác lửng
Mẫu thiết kế này sử dụng mái hình chóp giúp việc chống nóng đạt hiệu quả hơn.

Mặt bằng tầng trệt
Bên trong tầng 1 được bố trí 1 phòng khách, 1 phòng bếp và 1 phòng ngủ.

Mặt bằng tầng lửng
Phần gác lửng gồm 2 phòng ngủ và 1 phòng thờ. Có thể thấy đây là mẫu thiết kế vừa tiết kiệm chi phí xây dựng mà vừa đáp ứng mọi nhu cầu sinh hoạt trong gia đình, mang tính tiện nghi mà chủ nhân nào cũng ao ước sở hữu.
Mô hình 3D nhà cấp 4 nông thôn
Thiết kế nhà cấp 4 nông thôn đơn giản mang tính thẩm mỹ cao
Còn gì tuyệt vời hơn khi được sống trong ngôi nhà cấp 4 hiện đại ở một vùng quê yên bình phải không nào. Nhà cấp 4 nông thôn được thiết kế tối giản hóa đến từng chi tiết nhưng vẫn giữ được nét tinh tế và tính thẩm mỹ cao. Do không đòi hỏi kỹ thuật xây dựng phức tạp nên ngôi nhà sẽ được hoàn thành trong thời gian ngắn với mức kinh phí thấp phù hợp với thu nhập ở vùng quê. Chính vì vậy, đây là mô hình được các gia đình ở nông thôn ưa chuộng và xây dựng nhiều nhất.
Mẫu nhà cấp 4 mái thái 3 phòng ngủ kèm gác lửng
Mẫu nhà cấp 4 3D mái thái 3 phòng ngủ
Nhà cấp 4 mái thái có gác lửng là một trong những mẫu thiết kế được quan tâm nhất hiện nay. Phù hợp với khu vực thành thị lẫn nông thôn.

Mô hình nhà cấp 4 3D tầng trệt
Tuy không mang thiết kế cầu kỳ, kiểu cách nhưng mẫu nhà cấp 4 này vẫn nổi bật với phối cảnh mặt tiền hài hòa với kiến trúc hiện đại. Sử dụng gam màu trắng kết hợp với mái thái nâu trông đơn giản nhưng sang trọng vô cùng.
Xem thêm: Những mẫu thiết kế nhà phố mái thái, hiện đại
Mẫu nhà cấp 4 3 phòng ngủ kết hợp nhà vườn

Nhà cấp 4 đẹp giữa không gian xanh
Sở hữu mảnh đất lớn 13mx14m, bạn có thể lựa chọn mẫu nhà cấp 4 3 phòng ngủ kiểu nhà vườn sang trọng. Tuy nhiên, mô hình này đòi hỏi kinh phí xây dựng cao.

Mô hình 3D nhà cấp 4 nhà vườn
Với thiết kế mái thái giật cấp, ngôi nhà mang nét đẹp truyền thống của màu ngói đỏ tạo nên sự ấn tượng và sang trọng thu hút người nhìn. Hệ thống cửa sử dụng chất liệu gỗ pano kính cường lực có tác dụng cách âm, cách nhiệt rất tốt.
Mô hình 3d nhà cấp 4 có 3 phòng ngủ 1 phòng thờ 80m2

Nhà cấp 4 80m2 3 phòng ngủ 1 phòng thờ

Bản vẽ chi tiết bên trong nhà cấp 4
Tổng quan mô hình này được bố trí gồm: 1 phòng khách, 3 phòng ngủ, 1 phòng ăn, 1WC và 1 phòng thờ. Thiết kế mặt tiền với hệ thống mái ngói giật cấp tạo điểm nhấn bắt mắt cho ngôi nhà, khoảng sân trước tận dụng làm gara để xe ô tô.
Mẫu thiết kế nhà cấp 4 có 3 phòng ngủ và gara để xe

Mô hình nhà cấp 4 có gara
Đời sống của người dân ngày càng được cải thiện, do vậy nhu cầu sử dụng xe ô tô cũng tăng cao. Vì vậy mà nhiều người thường chọn mẫu thiết kế này cho ngôi nhà của mình. Mô hình này được thiết kế gồm 1 phòng khách, 3 phòng ngủ, 1 nhà bếp, 2 nhà vệ sinh và gara đáp ứng đầy đủ nhu cầu sử dụng của các thành viên trong gia đình.

Bản vẽ chi tiết cách bố nhà cấp 4
Tổng quan mẫu nhà cấp 4 với kết cấu các khối hộp liền kề nhau tạo thành hình chữ L, giống như một biệt thự nhà vườn sang trọng và nổi bật. Phần gara để xe với thiết kế đơn giản, nằm liền kề trong kết cấu của ngôi nhà mang tính thẩm mỹ cao.
Hy vọng sau khi tham khảo những mô hình nhà cấp 4 3D mà Xây Dựng Đức Thảo gợi ý vừa rồi sẽ giúp bạn chọn được một mẫu thiết kế không gian sống lý tưởng nhất cho gia đình mình. Để được tư vấn về thiết bị điện, cách bố trí nội thất chuẩn phong thủy, hãy liên hệ với chúng tôi qua hotline 0909772222 để được hỗ trợ.
Xem thêm: Những lưu ý khi thiết kế nhà cấp 4
CÔNG TY TNHH THIẾT KẾ VÀ XÂY DỰNG ĐỨC THẢO
- Địa chỉ: 435/284/17 Phạm Văn Đồng, phường 11, quận Bình Thạnh, TP.HCM
- Hotline: 0909772222
- Website: xaydungducthao.com